Bauplanung

Planungen schreiten voran, erste Entwürfe stehen im Raum

Zu Beginn des Projektes hat sich ein Planungsgremium bestehend aus Wehrführung, Vereinsvorständen und Fachpersonal aus den eigenen Reihen gebildet,

welches sich mit der Gestaltung des neuen Feuerwehrhauses beschäftigt. Nach mehreren Treffen konnten in Zusammenarbeit mit dem Architekturbüro erste Entwürfe für das neue Feuerwehrhaus zwischen Altenmittlau und Bernbach erstellt werden. In die Planung mit einbezogen wurde auch die Kindergruppenleitung, sowie Jugend- und Gerätewarte, die Ideen für ihren zukünftigen Arbeitsbereich mit einbringen konnten. Auch die Mannschaft stand im Mittelpunkt der Gespräche, welche kontinuierlich auf dem Laufenden gehalten wurde und somit einen Eindruck von der Größe des Vorhabens gewinnen konnte. 

Nachdem die Änderungswünsche und Anmerkungen in einem neuen Entwurf zusammen gefasst wurden und ein Plan finalisiert wurde, ging dieser zur Prüfung an den Kreis und das Land. Nachdem diese den Plan gesichtet hatten, musste festgestellt werden, dass die Zukunftsfähigkeit des Gebäudes aufgrund unerwarteten starken Zuwachses schon bald nicht mehr gegeben sein könnte. Somit mussten die Umkleideräume noch einmal vergrößert werden, um das Gebäude auch für die Zukunft zu wappnen.

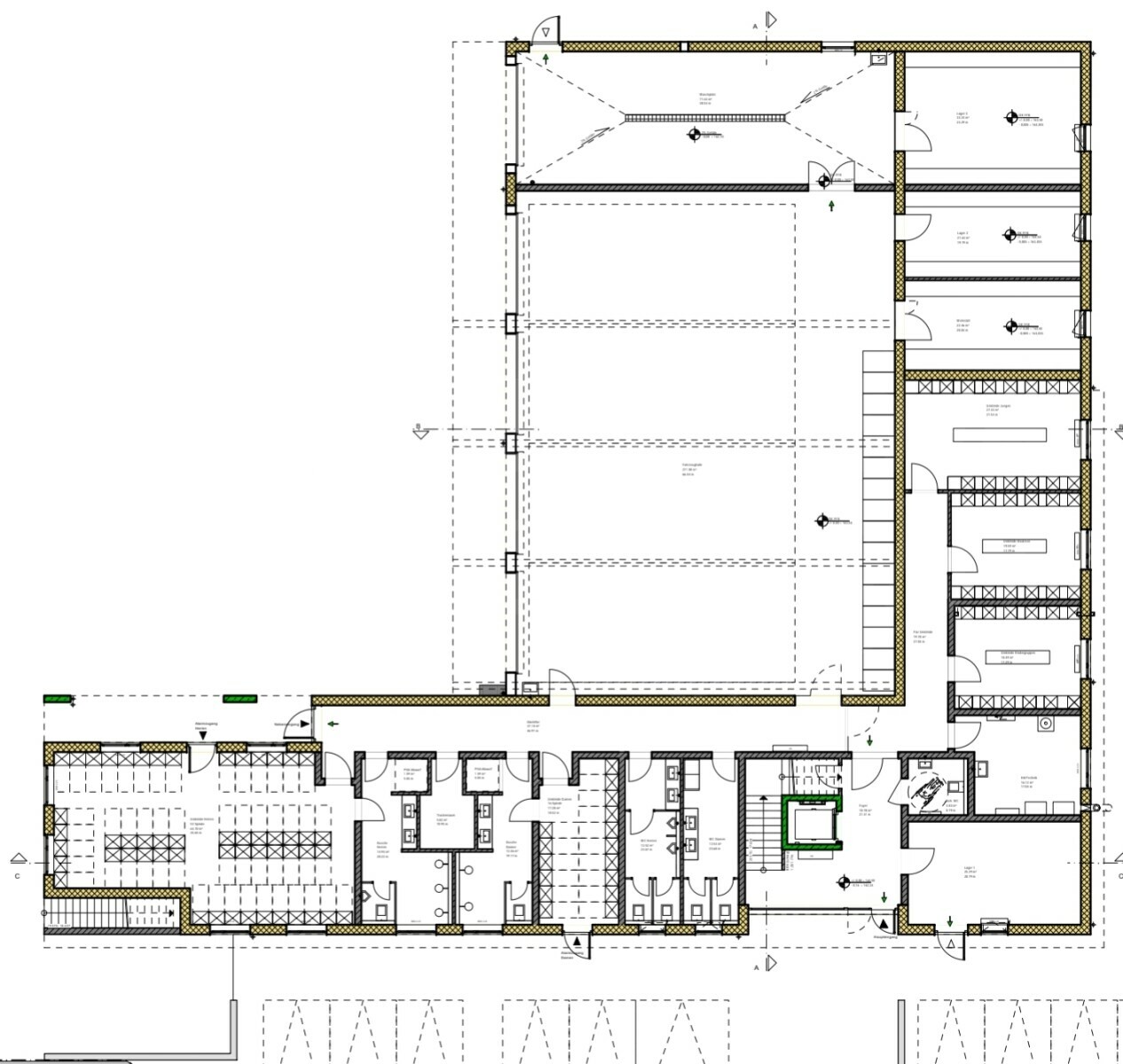
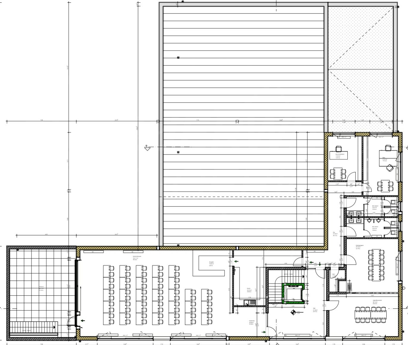
Nun konnte dann der Finale Bauplan nach 1,5 Jahren für die Auftragsvergabe freigegeben werden. Diese sehen Sie unten in den Bildern oder zu finden unter dem Link.

Das Planungsgremium erarbeitet weiterhin in Zusammenarbeit mit dem Architekturbüro und der Gemeindebrandinspektion weitere Pläne wie z.B. für Strom, Wasser und EDV aus.

Zurück Weiter